

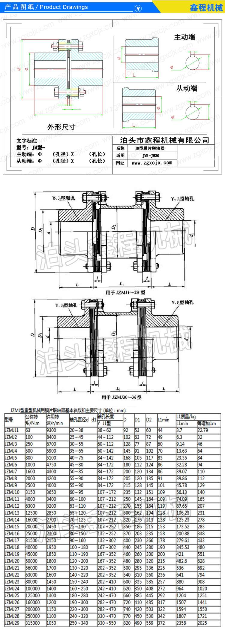
膜片联轴器的结构主要由不锈钢金属薄片(钢片)、半联轴器、中间套、压紧元件、螺栓、防松螺母、限位垫圈等组成。膜片联轴器至少由一个膜片和两个轴套形成。膜片被用螺丝紧固在轴套上一般不会松动或者许引起膜片和轴套之间的反冲。有一些制造商供应两个膜片的,也有供应三个膜片的,地方有一个或者许两个刚性元件,单方再连在轴套上。
不锈钢膜片联轴器从主动端半联轴器输入,经沿圆周间隔布置螺栓将扭矩传输至前端挠性钢片组,再由挠性钢片组通过螺栓传到中间套筒,并同样由另后端挠性钢片组、强度好螺栓及从动半联轴器输出。钢片组件是挠性联轴器的关键部件,是由数量的薄片弹性不锈钢叠合组成,通过它来传递扭矩和来自多方位的偏移量。钢片厚度一般视扭矩的大小和工况的不同而选择,一般为0.35~1.20mm,其形状有圆环式、连杆式、束腰式等。
金属弹性元件联轴器主要应用于以下一些场合:
1、传动的机械和数据传输系统。
2、高温、传动要求的场合。
3、大功率和高转速的泵和风机。
4、冲击扭矩较大,负载变化剧烈机械。
膜片联轴器的选定要求:
1、联轴器传递的扭矩要小于其设计容许范围。峰值扭矩的确定应考虑到机器制动所需要的加减速扭矩和过载扭矩。如果在设计时因资料不足或者分析困难,峰值扭矩不易确定时,可按联轴器选用时扭矩的计算参详。也就是计算扭矩不超过许用扭矩值
2、根据机械特性的要求,需要考虑传递扭矩的大小、刚度、振动、冲击、传动精度等特点。
3、膜片联轴器多运用于伺服系统中,膜片有很好的扭矩刚性。
4、根据轴径选择型号:初步选定的轴承联轴器联接尺寸,即轴孔直径d和轴孔长度L,应符合主、从动端轴径的要求,否则还要根据轴径d安置联轴器的规格。主、从动端轴径不相同是正常现象,当转矩、转速相同,主、从动端轴径不相同时,应按大轴径选择联轴器型号。新设计的传动系统中,应选择符合GBT3852中规定的七种轴孔型式,举荐运用J1型轴孔型式,以提高通用性和互换性,轴孔长度按轴承
螺栓的安装正确与否直接影响到膜片联轴器的性能寿命,它是膜片联轴器的重要部件之一,否则会造成人力和配件的浪费。因此正确安装螺栓方向是关键的一环,并千万切记不要装反和丢下任何一个小零件包括弹簧垫圈,才能使螺栓组件发挥它的优良性能,不会使联轴器其它部件损坏。
正确安装螺栓方法:把螺栓从法兰盘小孔外侧穿入,再穿入膜片孔中(注意膜片的方向,膜片是由许多单个薄片由铆钉和铆钉垫圈,铆钉垫圈处应与缓冲套相接触,否则会影响铆钉组的使用寿命),再从另件法兰盘大孔外侧穿入套上缓冲套,弹性垫圈,拧上螺母紧固时要注意使螺栓不要转动,因为螺栓与法兰盘配合段表面是传递转矩非常重要的配合段,表面完好性直接影响使用性能。
螺栓配合段与法兰盘小孔配合段间隙,齿式联轴器一般根据螺栓直径为0.20mm~0.30mm此配合段起到传递扭矩非常关键的作用,如果间隙超标换。缓冲套与膜片铆钉内孔与螺栓直径间隙为0.5mm~0.7mm,起到压紧和定位膜片作用。如果螺栓方向装锴容易造成螺栓偏斜,而膜片会因此而扭曲变形。因此,在安装螺栓时要注意螺栓方向,不要随意安装螺栓方向,否则会造成膜片扭曲,长期运转会使膜片和螺栓配合段表面、半轴节小孔处的损坏。
{ysseo:fcity} [field:citytitle/] {/ysseo:fcity}






















